
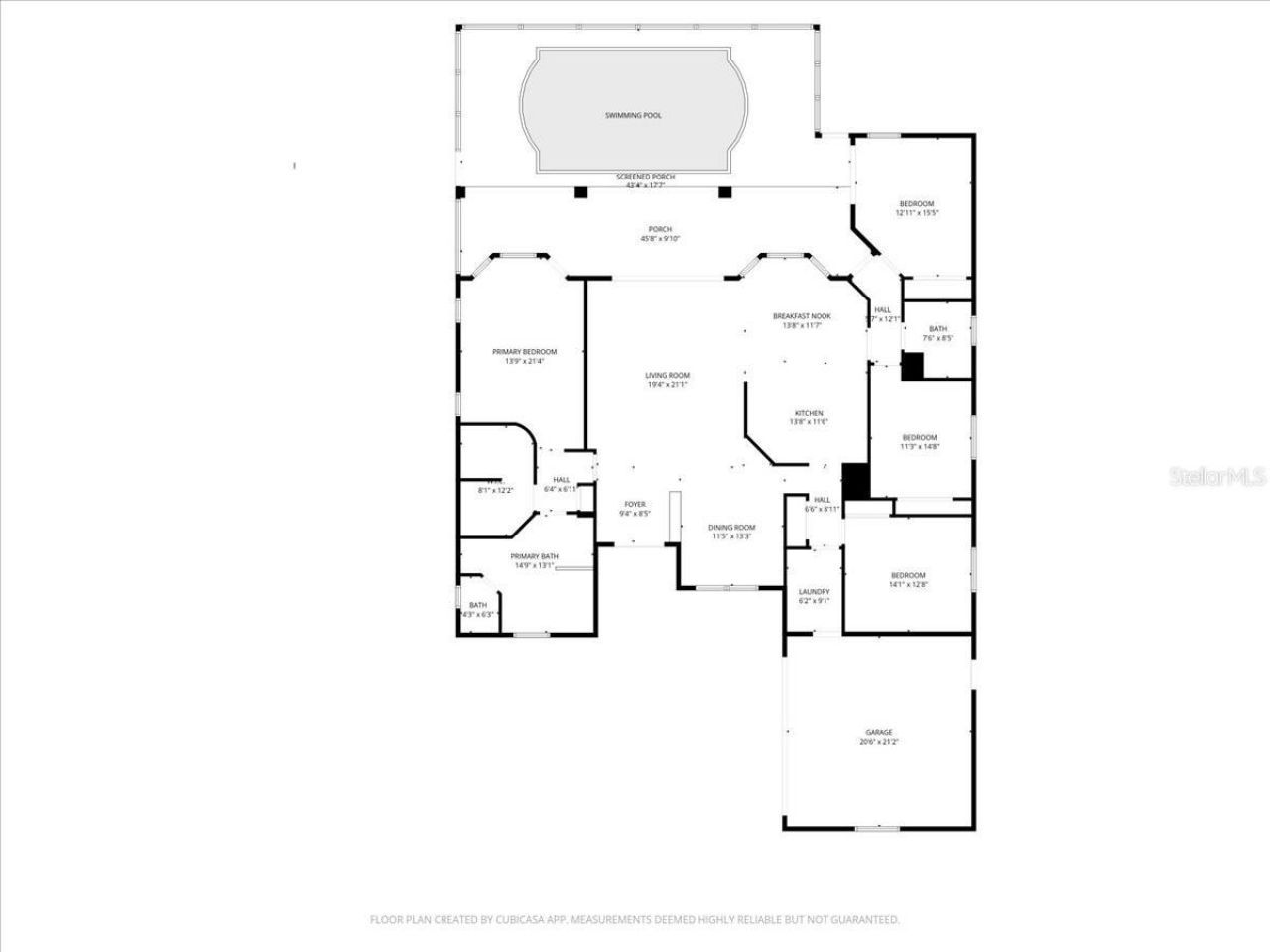
Located in the highly desirable gated and well maintained community of Greyhawk Landing, this beautifully Sam Rodgers 'Siesta II pool home offers an ideal blend of privacy, comfort, and thoughtful upgrades. Set on an expansive third-acre lot with tranquil preserve and lake views, this 4-bedroom, 2-bath residence features a 2024 roof, new spray foam attic insulation, a re-screened pool enclosure, and a solar-heated pool.Inside, the home welcomes you with an open and airy floor plan 10-foot ceilin...Located in the highly desirable gated and well maintained community of Greyhawk Landing, this beautifully Sam Rodgers 'Siesta II pool home offers an ideal blend of privacy, comfort, and thoughtful upgrades. Set on an expansive third-acre lot with tranquil preserve and lake views, this 4-bedroom, 2-bath residence features a 2024 roof, new spray foam attic insulation, a re-screened pool enclosure, and a solar-heated pool.Inside, the home welcomes you with an open and airy floor plan 10-foot ceilings, and generous formal and living spaces perfect for both everyday living and entertaining. The Owner's Retreat offers private access to the lanai and features a garden tub, dual vanities, a private water closet, an oversized custom closet, and plantation shutters.On the opposite side of the home, three additional bedrooms provide flexibility, with one ideally suited for a home office, and one with pool view. The chef's kitchen combines style and function with solid wood 42-inch cabinetry with upper and under-cabinet lighting, stainless steel appliances, a 2025 refrigerator, gas range, Corian countertops, and tile backsplash. For those who appreciate extra storage, be sure to look for the cleverly hidden space behind the shelving of one of the cabinets.Enjoy meals while overlooking the sparkling pool from either the breakfast bar or the casual dining area. A spacious indoor laundry room with additional cabinetry adds everyday convenience.Residents of Greyhawk Landing enjoy resort-style amenities including two community pools, a 24 hour fitness center, pickleball, tennis and basketball courts, a fishing pier, and several playgrounds. This home presents an exceptional opportunity to experience the best of Florida living-don't miss it!!
View MoreCourtesy of
Agency Name: RE/MAX ACTION FIRST OF FLORIDA
Agency Contact: 813-749-0875
Agent Name: Leni Altoe
Presented by
Agent Name: Jim Sawran
Agent Phone: 954.319.6909
Agency Title: The Keyes Company
Request Info
Send an email with a link to
13105 Peregrin Circle , Bradenton, FL 34212.
Email 13105 Peregrin Circle , Bradenton, FL 34212
Thank you for your inquiry! As a thank you, we have a Special Mortgage Offer for You.
We would like to provide you a free, no-obligation, home loan pre-approval review.