
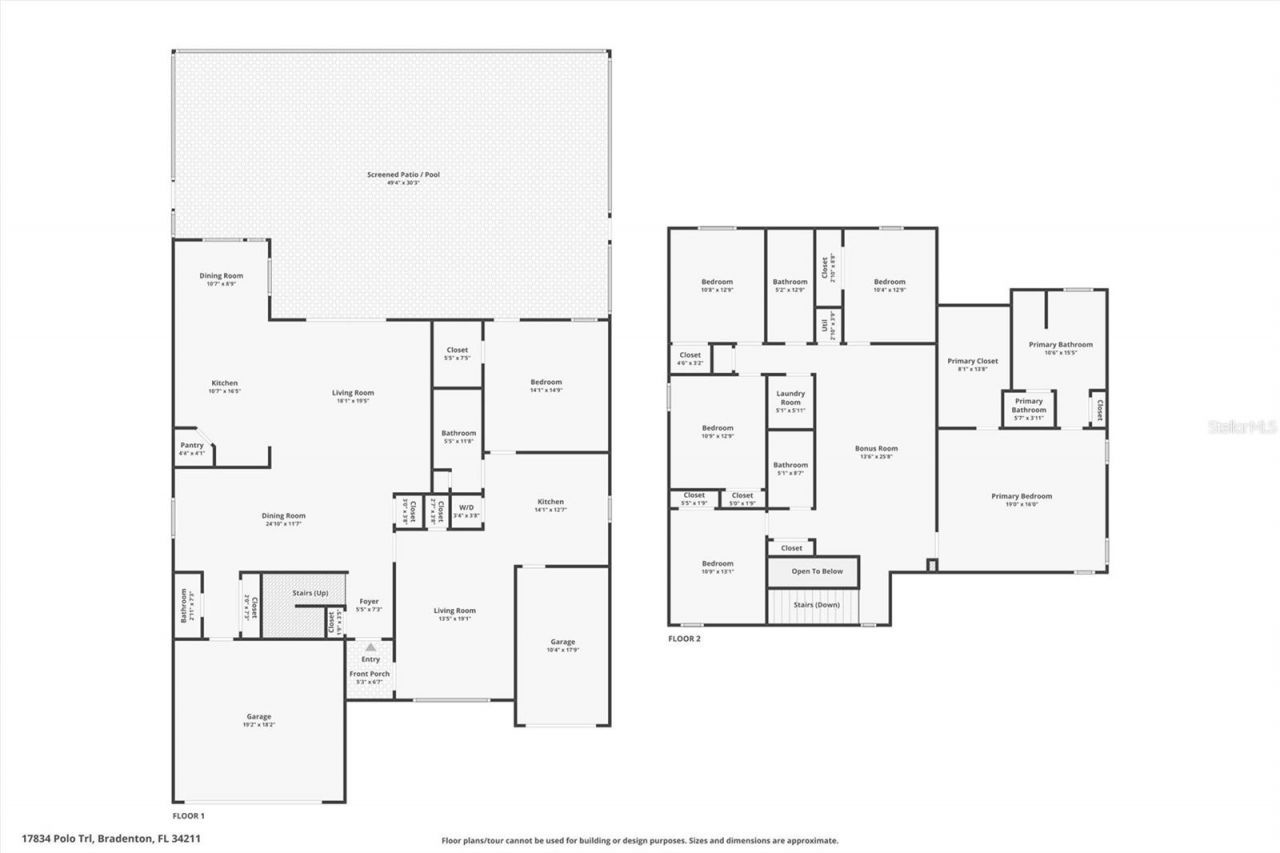
Welcome to an exceptional opportunity in Polo Run one of Lakewood Ranch's most sought-after gated, Solar-Powered, maintenance-free single-family home communities.This extensively upgraded (Main house) 5-bedroom, 3.5-bath pool home offers a rare blend of luxury, flexibility, and long-term value. Designed with modern living in mind, the home features solar power, and a thoughtfully designed floor plan that adapts beautifully to today's lifestyles.A standout feature is the Fully Attached 1-bedroom,...Welcome to an exceptional opportunity in Polo Run one of Lakewood Ranch's most sought-after gated, Solar-Powered, maintenance-free single-family home communities.This extensively upgraded (Main house) 5-bedroom, 3.5-bath pool home offers a rare blend of luxury, flexibility, and long-term value. Designed with modern living in mind, the home features solar power, and a thoughtfully designed floor plan that adapts beautifully to today's lifestyles.A standout feature is the Fully Attached 1-bedroom, 1-bath Apartment, complete with its own kitchen, living area, and private garage-perfect for multigenerational living, long-term guests, or added flexibility for work or extended family.Indoors, the upgrades are both stylish and intentional. The main kitchen showcases a custom backsplash, vent hood, microwave cabinet insert, and a charming custom kitchen nook with chalkboard table. Living spaces are elevated with a shiplap fireplace, board-and-batten entryway mud area, and plantation shutters throughout the den, kitchen, dining room, primary bedroom, primary bath, and stairway window. Flooring upgrades include laminate in the downstairs in-law bedroom, upstairs den, and primary bedroom, along with hardwood stairs.The primary suite offers its own cozy fireplace, while the upstairs bonus room featuring a striking accent wall with paneling and sconces, complemented by additional wood paneling accents in an upstairs bedroom. Practical upgrades include a mechanical interlock for generator hookup and overhead garage storage.The showstopper...Step outside to a private backyard retreat featuring a heated saltwater pool and spa, infinity screen enclosure, and an outdoor kitchen with natural gas hookup-ideal for entertaining or unwinding year-round. Located in Polo Run, residents enjoy resort-style amenities and a prime Lakewood Ranch location close to shopping, dining, medical facilities, and everyday conveniences. This home delivers the perfect balance of comfort, efficiency, and upscale Florida living-inside and out.
View MoreCourtesy of
Agency Name: COLDWELL BANKER REALTY
Agency Contact: 941-739-6777
Agent Name: Echo Belser PA
Presented by
Agent Name: Jim Sawran
Agent Phone: 954.319.6909
Agency Title: The Keyes Company
Request Info
Send an email with a link to
17834 Polo Trail, Lakewood Ranch, FL 34211.
Email 17834 Polo Trail, Lakewood Ranch, FL 34211
Thank you for your inquiry! As a thank you, we have a Special Mortgage Offer for You.
We would like to provide you a free, no-obligation, home loan pre-approval review.