
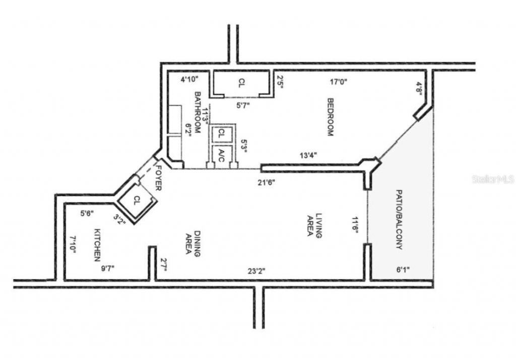
Start your morning with coffee in hand and a different amazing sunrise every day! Beachside fun awaits in this beautifully appointed condo directly on the shores of New Smyrna Beach. Everything you need awaits you. Fully furnished with high-end designer choices yet giving that cozy beachy feel you dream about for the perfect getaway. This Ocean Trillium 1 bedroom, 1 bath home has been recently totally renovated and has been used only as a private getaway so there's none of that wear and tear tha...Start your morning with coffee in hand and a different amazing sunrise every day! Beachside fun awaits in this beautifully appointed condo directly on the shores of New Smyrna Beach. Everything you need awaits you. Fully furnished with high-end designer choices yet giving that cozy beachy feel you dream about for the perfect getaway. This Ocean Trillium 1 bedroom, 1 bath home has been recently totally renovated and has been used only as a private getaway so there's none of that wear and tear that comes with a 'rental' unit. It would make a great income generator if you did decide to do so. It would outshine the others! Either way, take comfort knowing that Ocean Trillium has been well maintained. A new seawall, roof 2025, privacy fencing, security cameras, concrete restoration and building paint and much more have been done. Oh, and the pool is now heated! Yes, all assessments have been fully paid and unlike other condos, the monthly fee covers all utilities including the high cost of electricity PLUS the new owner's fees will actually go down by $147 a month. This home is ready now or as they say 'turn-key' for your pleasure and/or as a sought-after beachside Airbnb destination allowing short term rentals of any length.
View MoreCourtesy of
Agency Name: COLLADO REAL ESTATE
Agency Contact: 386-427-0002
Agent Name: Madeleine Thomas
Presented by
Agent Name: Jim Sawran
Agent Phone: 954.319.6909
Agency Title: The Keyes Company
Request Info
Send an email with a link to
3405 S Atlantic Avenue, Unit 502, New Smyrna Beach, FL 32169.
Email 3405 S Atlantic Avenue, Unit 502, New Smyrna Beach, FL 32169
Thank you for your inquiry! As a thank you, we have a Special Mortgage Offer for You.
We would like to provide you a free, no-obligation, home loan pre-approval review.