
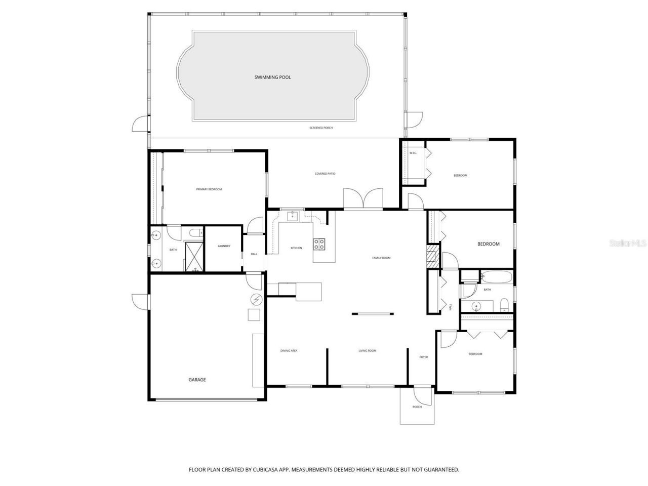
This is not your typical home-and the moment you walk in, you'll see exactly why.Completely reimagined from the standard neighborhood floor plan, every inch of this 2,001 sq ft home has been thoughtfully updated, upgraded, and rearranged to create a smart, open layout that actually makes sense for how people live today.The main living areas flow seamlessly, highlighted by crown molding in every room, a statement wall fireplace, and durable wood-grain tile flooring throughout (with brand-new carp...This is not your typical home-and the moment you walk in, you'll see exactly why.Completely reimagined from the standard neighborhood floor plan, every inch of this 2,001 sq ft home has been thoughtfully updated, upgraded, and rearranged to create a smart, open layout that actually makes sense for how people live today.The main living areas flow seamlessly, highlighted by crown molding in every room, a statement wall fireplace, and durable wood-grain tile flooring throughout (with brand-new carpet in the primary and front bedrooms for that soft landing at the end of the day).The kitchen delivers both style and function with granite countertops, a glass tile backsplash, stainless steel appliances, and warm maple cabinetry-because let's be honest, this is where everyone ends up anyway. The dual breakfast bars provide additional seating.The primary suite feels more like a private retreat, featuring a spa-inspired ensuite that gives you a reason to slow down and stay awhile.But the real showstopper? Step through the French doors and you'll feel like you've entered a completely different world.The backyard is oversized and designed for living-whether that's relaxing in the large pool (15' x 30') or hot tub, entertaining friends, or letting both your two-legged and four-legged crew run free. Even with the additional metal building, there's still plenty of room to breathe, play, and enjoy.And let's talk about that metal building-because this is where the opportunity really expands.A fully powered and air-conditioned 15' x 30' detached insulated metal building with overhead garage door, offers incredible flexibility. Whether you envision a workshop, home gym, art studio, game room, private office, or even a creative flex space-it's ready to adapt to your lifestyleLocation and peace of mind matter-and this property delivers on both.Situated just 8 miles from the beach, you get the best of Florida living without the constant traffic and chaos. Even better, the home is located in an X flood zone (no required flood insurance) and has never experienced flooding in 26 years of ownership-a rare and valuable combination in today's market.Additional highlights include: 4 generously sized bedrooms Oversized lot with room to truly live New lanai carpet (2025/2026) Fresh interior and exterior paint (2025/2026) Updated insulated window components (balance rods, locks, and guides) New steel front door and garage side doorThis home isn't just updated-it's been completely rethought. And it shows.And once you see it in person... you'll understand why it stands apart from everything else on the market. Roof & A/C new in 2016. Hot Water Tank in 2023.
View MoreCourtesy of
Agency Name: NEXTHOME IN THE SUN
Agency Contact: 941-706-1717
Agent Name: Xena Vallone
Presented by
Agent Name: Jim Sawran
Agent Phone: 954.319.6909
Agency Title: The Keyes Company
Request Info
Send an email with a link to
3911 24th Avenue W, Bradenton, FL 34205.
Email 3911 24th Avenue W, Bradenton, FL 34205
Thank you for your inquiry! As a thank you, we have a Special Mortgage Offer for You.
We would like to provide you a free, no-obligation, home loan pre-approval review.