
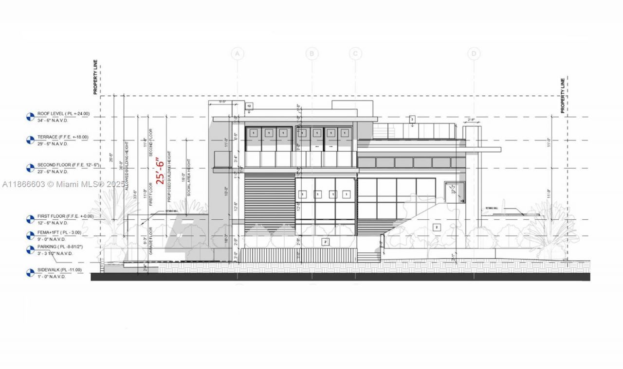
12,000 Sq Ft Lot at the desiderable neighborhood of Hollywood Lakes. Approved by Hollywood Historical Board for a new construction:TOTAL A/C area = 5,676.73 SF PARKING FLOOR (A.C.) = 1,533.67 SF FIRST FLOOR (A.C.) = 2,718.07 SF SECOND FLOOR (A.C.) = 1,396.07 SF TERRACE LEVEL (A.C.) = 28.92 SF Garage and Parking total units = 5. Up to 12 parking units. Net Lot Area -12.100 SQFT - 0.277 ACRES Pool - 9x32 FT 6 bedrooms, 6 bathroom,1 half bathroom Terrace Rooftop.Pre-construction for sale New Const...12,000 Sq Ft Lot at the desiderable neighborhood of Hollywood Lakes. Approved by Hollywood Historical Board for a new construction:TOTAL A/C area = 5,676.73 SF PARKING FLOOR (A.C.) = 1,533.67 SF FIRST FLOOR (A.C.) = 2,718.07 SF SECOND FLOOR (A.C.) = 1,396.07 SF TERRACE LEVEL (A.C.) = 28.92 SF Garage and Parking total units = 5. Up to 12 parking units. Net Lot Area -12.100 SQFT - 0.277 ACRES Pool - 9x32 FT 6 bedrooms, 6 bathroom,1 half bathroom Terrace Rooftop.Pre-construction for sale New Construction in Desirable Hollywood Lakes! This stunning 6-bedroom, 7-bathroom home offers 5,677 sq. ft. of luxury living. Approved by the historical board, it blends modern elegance with timeless charm. The open-concept design features high ceilings, a gourmet kitchen, and top-tier finishes.
View MoreCourtesy of
Agency Name: Macken Realty Inc
Agency Phone: 305-933-3800
Agent Name: Grant Manukyan
Presented by
Agent Name: Jim Sawran
Agent Phone: 954.319.6909
Agency Title: The Keyes Company
Request Info
Send an email with a link to
813 Harrison St, Hollywood, FL 33019.
Email 813 Harrison St, Hollywood, FL 33019
Thank you for your inquiry! As a thank you, we have a Special Mortgage Offer for You.
We would like to provide you a free, no-obligation, home loan pre-approval review.