
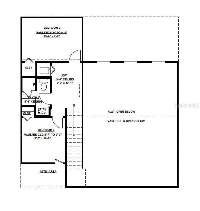
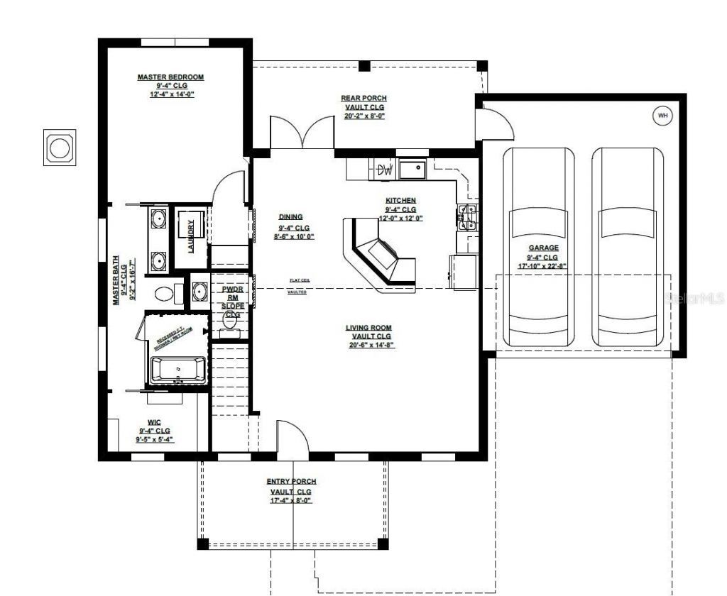
Pre-Construction. To be built. The Sorrento. Take advantage of this fantastic opportunity to build and select YOUR own custom finishes and design options with this turn-key 1,549 sq.ft., 3-bedroom, 2.5 bath custom home on a .28-acre corner lot in Mount Plymouth. Built by Kevco Builders, Inc., Lake County's most award-winning and trusted builder, known for over 40 years of Innovation, Integrity, and Excellence, delivering high-quality construction at an exceptional value. This thoughtfully design...Pre-Construction. To be built. The Sorrento. Take advantage of this fantastic opportunity to build and select YOUR own custom finishes and design options with this turn-key 1,549 sq.ft., 3-bedroom, 2.5 bath custom home on a .28-acre corner lot in Mount Plymouth. Built by Kevco Builders, Inc., Lake County's most award-winning and trusted builder, known for over 40 years of Innovation, Integrity, and Excellence, delivering high-quality construction at an exceptional value. This thoughtfully designed model features an open floor plan with a double height great room, dining area, and a spacious kitchen offering stainless appliances, a large island, granite or quartz countertops, and custom Wellborn cabinetry crafted for the modern cook. The owner's retreat includes a walk-in closet and a luxurious bath, wet room with fully tiled shower and standalone tub, and premium finishes. Additional highlights include luxury vinyl plank flooring, 5-1/4 crown molding and baseboards, 8' interior and exterior doors, energy-efficient construction and Low-E windows. Enjoy two exterior porches, a 2-car garage, and Kevco's robust included features such as site prep, surveys, impact fees, and utility connections - offering a true turn-key experience. Located in one of the most desirable areas of Lake County, just minutes from Charming Downtown Mount Dora, with easy access to SR 429 for a short drive to Orlando's world-famous theme parks, and shopping. Elegance radiates from the heart of this home - a perfect blend of craftsmanship, modern comfort, and country charm. This is the home you've been waiting for!
View MoreCourtesy of
Agency Name: DUNN REALTY
Agency Contact: 352-343-0149
Agent Name: Genevieve Matos
Presented by
Agent Name: Jim Sawran
Agent Phone: 954.319.6909
Agency Title: The Keyes Company
Request Info
Send an email with a link to
Tbd Lot 18 Apawamis Drive , Mount Plymouth, FL 32776.
Email Tbd Lot 18 Apawamis Drive , Mount Plymouth, FL 32776
Thank you for your inquiry! As a thank you, we have a Special Mortgage Offer for You.
We would like to provide you a free, no-obligation, home loan pre-approval review.